屏蔽机柜主要技术参数响应表
来源:http://www.whyfjg.com/ 作者:武汉怡富通讯机柜厂家 发布时间:2023-05-08 09:05

1、屏蔽机柜主要技术参数响应表:
屏蔽机柜主要技术参数响应表
序号 | 主要技术参数 | 说明 | 响应说明 |
1 | 规 格 | 700*800*1600(屏蔽机柜) 700*800*1800(屏蔽机柜) | 完全响应 |
2 | 性能指标 | 按国家GB12190-90、国家保密BMB3-1999、GJBz-20219-94标准测试,技术指标满足以下要求: 磁 场:150KHz≥75dB 平面波:1MHz —50MHz≥90dB 微 波:1GHz≥85dB | 完全响应 |
3 | 产品配置 | (1)冷轧钢板焊接成的全密闭的箱体,经过镀锌与油漆等防腐蚀处理; | 完全响应 |
(2)优良材料经过精心制作与处理的屏蔽簧片、冷轧钢板焊接成的门扇组成的屏蔽门; | 完全响应 | ||
(3)采用效率高的电源滤波器,具有宽抑制频带和高的插入损耗,机柜电流为220V,32A,两路输入; | 完全响应 | ||
(4)每个机柜24条铜缆输入屏蔽; | 完全响应 | ||
(5)圆型通风波导窗,设有微型轴流风机 | 完全响应 | ||
(6)上下前后可调位置的服务器安装支架; | 完全响应 | ||
(7)当机柜内温度达到预设温度值风扇自动启动; | 完全响应 |
2、屏蔽机柜技术方案:
(1)电磁屏蔽原理
电磁屏蔽是用屏蔽体阻止高频电磁场在空间传播的一种措施。电磁波在通过金属或对电磁波有衰减作用的阻挡层时,会受到一定程度的衰减,即这些金属或阻挡层有屏蔽作用,屏蔽效能的大小与电磁波的性质及金属或阻挡层的自身特性有关。
金属板电磁屏蔽的物理过程
当电磁波入射到两侧为空气的金属板时,一部分能量被反射,即反射损耗;透射波在金属板内传播过程中被衰减的部分称之吸收损耗;在第二界面上被反射到第一界面时将再次产生反射,如此循环往复,直至能量全部被衰耗和透射,这种现象就是屏蔽理论中应考虑的多次反射修正因子。
缝隙的屏蔽
屏蔽体上的永久性接缝一般指采用焊接方法将两金属板连接在一起,这种永久性接缝几乎与金属板本身的射频阻抗相等;
截止波导屏蔽
当电磁波频率低于波导的截止频率时,在传输中将产生很大的衰减。常用的截止波导有园形、矩形和六角形。
园波导的截止频率:
fc=17.6*109/D ( HZ ) D—圆波导的内直径
为使波导有足够的衰减,应满足:
fc》f f—电磁波频率
l≥3D l—截止波导长度
从通风散热来考虑,为了获得足够的通风面积,以满足所需要的通风量,可将很多根截止波导紧挨着排列在一起,构成一组截止波导式通风孔阵。
滤波器
传导干扰是通过金属导体例如导线或任何金属结构传播的干扰,进入屏蔽室(柜)内的全部金属导线要滤波,电子滤波器是集中的或分布的电路元件(如电阻、电感、电容、或它们的等效物或各种元件的组合)的网络,这些网络对某些频率或直流较小反抗,而阻塞或短路其它频率通道。
滤波器可粗略分为:电滤波器、通讯滤波器和控制线滤波器。
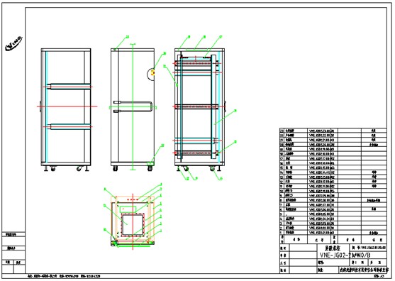
(2)结构图
(3)结构组成:
屏蔽壳体
柜体由1.5mm厚的冷扎钢板焊接成的密封箱体,经过电镀锌与油漆等防腐处理。
屏蔽门:
由优良材料经过精心制作和处理的屏蔽簧片、冷扎钢板焊接成的门扇组成的屏蔽门。
电源滤波器
电源滤波器具有宽抑制频带和高的插入损耗,防止传导干扰,功率大小为:220V/32A C级
通风散热:
柜体上下设有规格为300mm×300mm的蜂窝型通风波导窗,柜顶波导窗设有四只轴流风机,排风量可达450m3/h。

波导管:
光纤波导管:内径φ13*100光纤波导管;(标准配置5根)
屏蔽网线传输接口:设有带弹性夹头的铜制传输波导管;(标准配置5只五类线或六类屏蔽线接头

其他: 可根据用户要求配置传输接口及电源分配单元等。
(4)规格:
型号 | 规格 | 外形尺寸(宽×深×高) | 内净尺寸(宽×深×高) |
VN-JG-EMC/C | 32U | 700mm×800mm×1600mm | 490mm×590mm×1400mm |
VN-JG-EMC/C | 37U | 700mm×800mm×1800mm | 490mm×590mm×1600mm |



